Zadní světlo do mlhy_nesvítí
Moderátor: Minor
- aerostanislav
- Žáček

- Příspěvky: 221
- Registrován: 06 led 2011 18:41
- Bydliště: Řepová u Mohelnice
- Kontaktovat uživatele:
Zadní světlo do mlhy_nesvítí
Ahoj CRXkáři potřeboval bych poradit. Nesvítí mě zadní světlo do mlhy,ani kontrolka ve vypínači na přístrojové desce . Prosím kde začít,nemá někdo přeloženy do češtíny pozice pojistek? Předem Díky Standa.
Re: Zadní světlo do mlhy_nesvítí
V tlačítku jsou dvě žárovečky, jedna pro podsvětlení a druhá pro indikaci zapnuté mlhovky. I když bude indikační žárovečka vadná, mlhovka svítit bude.
Zkoušel jsi žárovku vzadu v panelu?
Zkoušel jsi vyndat tlačítko a na konektoru mlhovku "sepnout"?
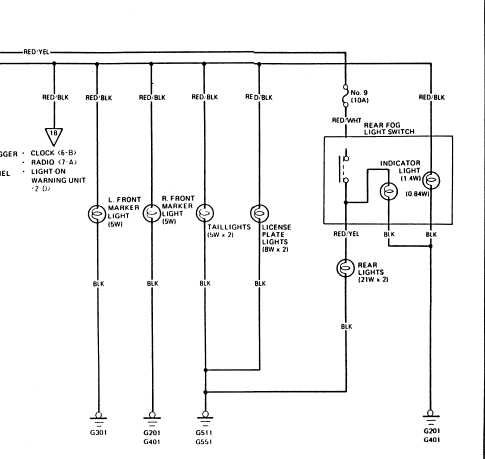
Jinak by to mohla být pojistka č. 9 - "rear fog light"
Zkoušel jsi žárovku vzadu v panelu?
Zkoušel jsi vyndat tlačítko a na konektoru mlhovku "sepnout"?
Jinak by to mohla být pojistka č. 9 - "rear fog light"
Minor@honda-club.cz, 737574121, whatsapp 776408287
- aerostanislav
- Žáček

- Příspěvky: 221
- Registrován: 06 led 2011 18:41
- Bydliště: Řepová u Mohelnice
- Kontaktovat uživatele:
Re: Zadní světlo do mlhy_nesvítí
Díky Minore, zítra se na to podívám.Je to moc fajn mít takové přátele hned je na světě líp.Ještě jednou MOOOC díky. Standa.
- aerostanislav
- Žáček

- Příspěvky: 221
- Registrován: 06 led 2011 18:41
- Bydliště: Řepová u Mohelnice
- Kontaktovat uživatele:
Re: Zadní světlo do mlhy_nesvítí
Ach jo někde je něco v háji ,dnes jsem rozebral kde co ,ale závada trvá dál. Nejdřív jsem skontroloval žárovku, potom jsem se podíval na tu pojistku č 9.Když jsem zjistil ,že i ta je dobrá jsem se pustil do přístrojové kapličky a po zážitku se zasuvkami(vždycky zapomenu kde to mám zmáčknout,abych to rospojil) jsem dostal spínač ven ,ten jsem rozebral, v domění , že jsou opálené kontakty.(kdysi před asi 3_4 léty jsem měl opálené kontakty v přepínači dálkových a tlumených světel) Jaké bylo moje překvapení ,že uvnitř bylo vše OK.Ušetřil bych si kupu práce, kdybych si zkontroloval zda jde do tohoto vypínače elektrika samozřejmě že nejde .Tak jsem zase v koncích .Proto že mám nějaký slabý internet nejde mě stáhnout schéma elektriky . Dal jsem to dohromady abych mohl jezdit a časem se uvidí,jen musím doufat ,že do mě někdo v mlze nenapicne. Jo a při demontáži kontrolek ve spínači se mi jedna podařila rozlomit,ale to je asi maličkost. Tak to byla moje dnešní anabaze.Všechny CRXkáře zdravím Standa od Mohelnice u Mírova.
- PAKO
- CRXař

- Příspěvky: 495
- Registrován: 24 led 2011 14:31
- Bydliště: Praha-Běchovice,Škvorec
- Kontaktovat uživatele:
Re: Zadní světlo do mlhy_nesvítí
chlope jedna rada...bud si kup nebo si udělej žárovkovou zkoušečku...nic jiného než žárovka a dva dráty... (staará patice i se žárovkou). kontrola vždy na autobaterii svítí nesvítí a pak hledat problém...ukostřid a hledat...nemusel jsi zbytečně rozebírat půl auta.
Re: Zadní světlo do mlhy_nesvítí
No, vezmi to přes zkoušečku, jestli jde na pojistku proud. Ale pozor, jde tam jen při zapnutých světlech. Pak jestli je i za pojistkou. prostě musíš určit, kde proud ještě je a kde ne.
To zapojení nevypadá složitě
To zapojení nevypadá složitě
Minor@honda-club.cz, 737574121, whatsapp 776408287
- Petk@
- Šéfík!:)

- Příspěvky: 1125
- Registrován: 09 čer 2011 09:14
- Bydliště: Praha
- Kontaktovat uživatele:
Re: Zadní světlo do mlhy_nesvítí
na bejvalim ceru jsem mel ten samej problem a take sem nic nenasel pojistka dobra kabel taky proud sel ale nesvitila a pak jsem zjistil že byl vadný drat k vipinači který zlobil tak že kdys jsem mel kryt na pojistky sundanej tak vodil ale kdys byl kryt na svim miste tak nešel pritom se tam nikde nic nedotýkalo a drat nebyl nijak viditelně poškozen jakože skříplej nebo tak , ale v praci jsme meli acorda coupe us 92r.a tam to delalo nepochopitelně to že žarovka fungovala jako vodič dál a kdys nešla ve vypínači tak prostě čau dal proud nepujde
vypinač teda nebyl origo ale stejnak
jinak kdys sme utech mlhovek nemate nejakej typ na cero poface mlhovky na čumak ? 

- aerostanislav
- Žáček

- Příspěvky: 221
- Registrován: 06 led 2011 18:41
- Bydliště: Řepová u Mohelnice
- Kontaktovat uživatele:
Re: Zadní světlo do mlhy_nesvítí
Zdravím CRXkáře ,po dnešní ranní jízdě vše v naprostém pořádku. Přátelé , při podzimní prohlídkové akci v hondě zjistili že mi nesvítí světlo do mlhy(zadní), s tím,že jsou zřejmě vypáleny kontakty ve spínači na přístrojové desce.Proto jsem tak blbě postupoval.Mám dojem že ,to začalo fungovat proto že při demontáži spinače jsem utřel hadříkem deštičku s kontakty (bylo na ní dosti vazelíny)a pohnul s paticí kontrolky tak to začalo opět fungovat.No uvidím jak dlouho.PS.tu žárovkovou zkoušečku mám a ne 1, ale na veterány ,které renovuji musím mít taky ještě 6ti voltovou. Přesto všem moc děkuji za dobře míněné radyDÏKY.
Re: Zadní světlo do mlhy_nesvítí
Jak často spínáš mlhovku, aby se tam ty kontakty vypálily? To se mi moc nezdá.
Ale hlavní je, že to funguje.
Ale hlavní je, že to funguje.
Minor@honda-club.cz, 737574121, whatsapp 776408287
Zpět na „Potřebuji poradit :( / Need help“
Kdo je online
Uživatelé prohlížející si toto fórum: Žádní registrovaní uživatelé a 115 hostů