Nastartujeme a necháme motor ohřát na provozní teplotu.
Odpojíme konektor EACV.
Zjistíme stav otáček v klidovém režimu (bez puštěného topení, světel či vyhřívání zadního okna). Volnoběžné otáčky by měly být v rozmezí 650+- 50rpm.
Pokud nejsou, nastavíme tuto hodnotu pomocí plochého šroubu umístěného na tělese klapky.
Poté připojíme konektor zpět na EACV a vyjmeme pojistku č. 10 a provedeme reset ECU.
Motor v tomto stavu nechte běžet asi minutu. Otáčky by v klidovém režimu (bez topení, světel či vyhřívání zadního okna). Volnoběžné otáčky by měly být v rozmezí 750+- 50rpm pro SOHC a 800+-50 rpm pro DOHC.
Stejný postup můžeme aplikovat i s rozsvícenými světly a zapnutým vyhříváním zadního okna. Volnoběžné otáčky by měly být v rozmezí 750+- 50rpm pro SOHC a 800-50 rpm pro DOHC.
Dalším krokem je zjištění volnoběžných otáček v plném zatížení (puštěné topení, světel a vyhřívání zadního okna). Volnoběžné otáčky by měly být v rozmezí 780+- 50rpm pro SOHC a 800+-50 rpm pro DOHC.
Pokud vše souhlasí máme nastaveno .
seřízení otáček
Moderátor: Minor
- Martin16
- CRX Guru

- Příspěvky: 632
- Registrován: 25 čer 2009 10:17
- Bydliště: Praha
- Kontaktovat uživatele:
seřízení otáček
アクションのないビジョンは白昼夢のようなものです。ビジョンなしのアクションは悪夢です
"Vize bez akce je jako snění za bílého dne. Akce bez vize je noční můrou"
"Vize bez akce je jako snění za bílého dne. Akce bez vize je noční můrou"
Re: seřízení otáček
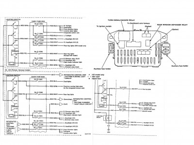
rád bych věděl,kde je poj.č.10.a taky nějáký jedn.plánek ostatních pojistek,mám jen knížku CIVIC,kde je to nějak jinak...a v angl.to nedám 
Re: seřízení otáček
Ta pojistka se vyndává kvůli resetu ecu. Je to pojistka vlevo nahoře v pojistkové skříňce pro kapotou, na levém podběhu (když stojíš proti autu, jinak je to tedy spolujezdcův podběh).
Minor@honda-club.cz, 737574121, whatsapp 776408287
- Martin16
- CRX Guru

- Příspěvky: 632
- Registrován: 25 čer 2009 10:17
- Bydliště: Praha
- Kontaktovat uživatele:
Re: seřízení otáček
murtin píše:rád bych věděl,kde je poj.č.10.a taky nějáký jedn.plánek ostatních pojistek,mám jen knížku CIVIC,kde je to nějak jinak...a v angl.to nedám
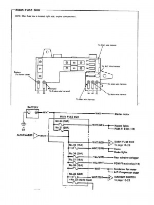
plánek pojistek u motoru here:
pojisky pod volatem here:
popis co která je by měl být na i krytu pojistek pod volantem
Noa ke všemu jsem to do popisu napsal blbě č. pojistky je 34
アクションのないビジョンは白昼夢のようなものです。ビジョンなしのアクションは悪夢です
"Vize bez akce je jako snění za bílého dne. Akce bez vize je noční můrou"
"Vize bez akce je jako snění za bílého dne. Akce bez vize je noční můrou"
Re: seřízení otáček
AHA
díky moc.na Marušce popisky už dávno nejsou,tak tápu.dnes js např.sundal palubku a je to tam evidentně překopaný a např.uřízlej výdech na lev.okýnko,takže se furt potilo.. asi vyhážu vše,co není nutný a uvi
Kdo je online
Uživatelé prohlížející si toto fórum: Žádní registrovaní uživatelé a 3 hosti